Introducing

TATA ARIANA

TATA Ariana at Kalinga Nagar, Bhubaneswar, is a 12-acre premium community offering 3, 3.5 & 5 BHK apartments with world-class amenities and lush green surroundings.

Let Us Help

Discover TATA ARIANA With Ease

Kalinga Nagar, Bhubaneswar.

Location

12

Land Area in Acres

1100

No. of Units

19

Structure

2027 march

Possession

MP/19/2025/01331

RERA

Download Brochure

You Will Be Sent All the Latest

Your Contact Details are safe. It won’t be compromised in any condition.

Detailed layouts and specifications of your Home

3BHK,
Ready to Move
SBUA-1678
CA- On request
2.55 cr
3BHK

*All dimensions(SBUA and CA) are in sq.ft

3.5BHK,
Ready to Move
SBUA-2700
CA- On request
3.04 cr
3.5BHK

*All dimensions(SBUA and CA) are in sq.ft

5BHK Duplex,
Ready to Move
SBUA-1678
CA- On request
5 cr
5BHK Duplex

*All dimensions(SBUA and CA) are in sq.ft

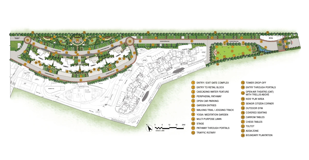
Project Masterplan

Thoughtfully crafted to balance open spaces, greenery, and modern infrastructure, the master plan ensures seamless connectivity between residences, amenities, and landscaped zones—offering a harmonious living experience for every resident
12 acres
Project Area
40%
Open Space
12
Towers
19 Floors
Structure
1100
Units

Project Location Map

Strategically positioned with excellent road networks and proximity to key hubs, the Location Map highlights seamless connectivity to business districts, schools, healthcare, and lifestyle destinations—ensuring effortless access to every urban convenience while staying rooted in a premium neighborhood.
11KM
Airport
1.1KM
DAV Public School
6.5KM
Birla Global University

GOOD VALUE FOR MONEY.

Why It’s Worth It

1
Early Access to Community
Be among the first to own an exclusive homes before the grand launch—best views, best valu
2
Attractive Launch Pricing
Get special pre-launch rates that offer excellent value compared to post-launch prices. Ideal for early investors and end users alike.
3
Trusted Builder Track Record
Backed by Prestige Corporate’s commitment to excellence, Prestige Park Grove timely delivery, exceptional craftsmanship, and unmatched quality in every detail
4
Strategic Location on Whitefield
Located in Whitefield, with seamless access to Bengaluru's finest schools, hospitals, landmarks, and everyday conveniences.

Featured Amenities

Large Green Area
Swimming Pool
Club House
Gym
Power Backup

The Beauty in the making

Enquire Today to Discover Exclusive Details About the Project

Share your details to receive complete project information, pricing, and exclusive offers directly from our team.

Frequently Asked Questions

1. What is TATA Ariana?
TATA Ariana is a premium 12-acre residential apartment community by Tata Housing, located in Kalinga Nagar, Bhubaneswar, offering 1, 2, and 3 BHK homes amidst lush greenery.
2. Where is the project located?
The project is strategically located in Kalinga Nagar, Bhubaneswar, with excellent connectivity to schools, universities, hospitals, and the airport.
3. What is the total land area and number of units?
TATA Ariana is spread across 12 acres, featuring 12 towers with 19 floors each, comprising around 1100 units.
4. What are the available configurations and sizes?
The project offers 3 BHK (1678 sq. ft.), 3.5 BHK (2700 sq. ft.), and 5 BHK Duplex (1678 sq. ft.) apartments.
5. What is the price range of the apartments?
Homes at TATA Ariana start from ₹2.55 Cr and go up to ₹5 Cr, depending on the configuration.
6. What are the key amenities offered?
Amenities include a swimming pool, clubhouse, gym, banquet hall, mini theatre, landscaped gardens, sports courts, kids’ play area, yoga room, spa, sauna, jogging/cycling tracks, and more.
7. Is the project RERA approved?
Yes, TATA Ariana is RERA approved with the ID: MP/19/2025/01331.
8. Who is the builder of TATA Ariana?
The project is developed by Tata Housing (TRIL), a trusted name in Indian real estate known for its quality and timely delivery.

More Details

Tata Ariana is a premium residential apartment complex located in the serene neighborhood of Kalinga Nagar, Bhubaneswar. Developed by Tata Housing, this gated community is spread across 12 acres and is known for its lush green surroundings and proximity to forest reserves, offering a tranquil living environment. The project features a total of 1200 well-designed units spread across 12 towers, with apartment configurations ranging from 1, 2, to 3 BHK. The sizes of these homes vary between 418 to 1054 square feet, catering to a variety of lifestyle needs. Designed to provide a self-sufficient and comfortable lifestyle, Tata Ariana is equipped with modern amenities including a fully equipped gymnasium, a swimming pool, a children’s play area, a mini theatre, and more. The community also emphasizes maximizing scenic views and blending harmoniously with the natural environment. The project is RERA approved (registration number 00770) and is ready to move in, with prices starting from ₹32.55 lakh to ₹90.53 lakh. Tata Ariana is part of a larger township development, offering residents a well-rounded, peaceful, and modern living experience. Additionally, home loans are available through reputed financial institutions, making it an ideal option for prospective homeowners.
Tata Ariana is a thoughtfully designed residential project by Tata Realty and Infrastructure Limited (TRIL), a subsidiary of the esteemed Tata Group. Situated in Kalinga Nagar, Bhubaneswar, the project offers a range of 1, 2, and 3 BHK apartments, catering to diverse family needs. With apartment sizes ranging from 657 to 1637 square feet, Tata Ariana spans across 12 towers and comprises a total of 780 residential units. This ready-to-move-in development emphasizes creating a secure, well-planned, and comfortable community for its residents. The project is enriched with modern amenities such as a children’s play area, a fully equipped gym, and beautifully landscaped gardens, enhancing both lifestyle and convenience. Known for its commitment to quality and innovation, Tata Housing has earned a strong reputation in the real estate industry, and Tata Ariana is a shining example of this legacy. As part of a larger Tata Housing initiative in Bhubaneswar, the project has already been chosen by around 800 families in its earlier phases, highlighting its popularity and trust among homebuyers.